Commercial Kitchen Workstation CAD Blocks for Efficient Restaurant Layouts

commercial kitchen counter CAD block

insert_drive_file size: 13 kb

folder category: commercial, business and industrial equipment - commercial kitchen

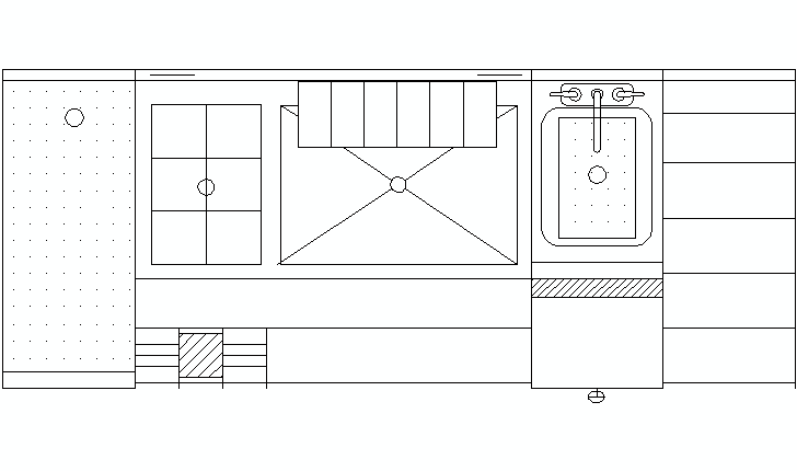
info description: top-down view of a commercial kitchen counter

draw file extension: .dwg CAD - AutoCAD software

download CAD block

Free Commercial Kitchen Workstation CAD Files for Download

Introduction to Commercial Kitchen Workstations

A well-designed commercial kitchen workstation is crucial for optimizing space and enhancing workflow in a restaurant or food service establishment. This CAD block provides a clear layout of key kitchen elements, including preparation areas, sinks, and storage compartments. Available in dwg format, this CAD file is ideal for designers and architects looking to incorporate an efficient, streamlined kitchen setup into their projects.

Key Features of a Commercial Kitchen Workstation

Workstations in a commercial kitchen typically feature multiple sections dedicated to different tasks, such as food prep, dishwashing, and storage. The workstation shown in this CAD block includes a stainless steel sink, prep counters, and under-counter storage, all designed to maximize functionality while minimizing space usage. Standard workstations are typically between 24 and 30 inches deep (0.61 to 0.76 meters), with a height of around 36 inches (0.91 meters), ensuring ergonomic comfort for kitchen staff.

Types of Workstations and Their Uses

There are various types of workstations commonly used in commercial kitchens, including prep tables, dishwashing stations, and cold prep counters. These workstations are often made from durable materials such as stainless steel, which is known for its resistance to heat, moisture, and corrosion. Depending on the restaurant’s needs, stations can be tailored for specific tasks such as baking, grilling, or assembling dishes. The CAD block provided here offers a versatile layout that can be adapted to fit any kitchen’s requirements.

Designing Efficient Kitchen Workstations

An efficiently designed kitchen workstation ensures that everything is within easy reach, helping to streamline operations and reduce unnecessary movement. By incorporating the CAD block into your restaurant design, you can ensure that workstations are strategically placed to promote smooth workflow. Placement near the cooking and cleaning areas is essential to maintain speed and efficiency during busy service periods. According to industry best practices, ensuring enough space for staff to work comfortably while keeping all necessary tools and ingredients within arm's reach is key to maximizing productivity.

Download Free Commercial Kitchen Workstation CAD Blocks

This commercial kitchen workstation CAD block is available for free download in dwg format. Whether you're planning a restaurant kitchen layout, a café, or a catering facility, this file offers precise dimensions and layout details to ensure the effective use of space. Download it today to enhance your commercial kitchen design and streamline your food preparation processes.

arrow_upward
discover more categories: explore our full collection